Apartamento T3 à venda em Alcobaça
São Martinho do Porto
626 000 €Venda
id. 123781003-471
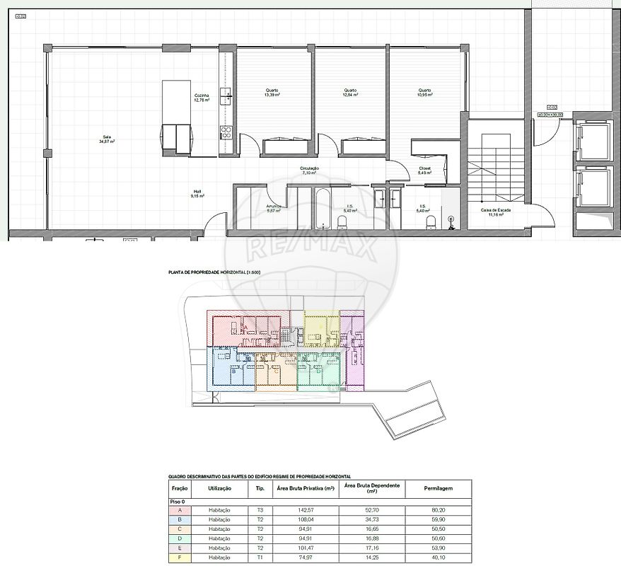
142 m²
3 Quartos
2 WC
Descrição
Detalhes
Área Bruta m²
142Área Total do Lote m²
- -Área Útil m²
142Quartos
3Ano de Construção
2028WC/Casas de banho
2Elevador
NãoEstacionamento
SimCarregamento de Carros Elétricos
NãoMapa
Divisões
Cozinha
Quarto
Quarto
Quarto
Sala de Estar
Estacionamento





