Apartamento à venda em Porto

Ramalde
208 000 €Venda
id. 124601296-106
48

Descrição

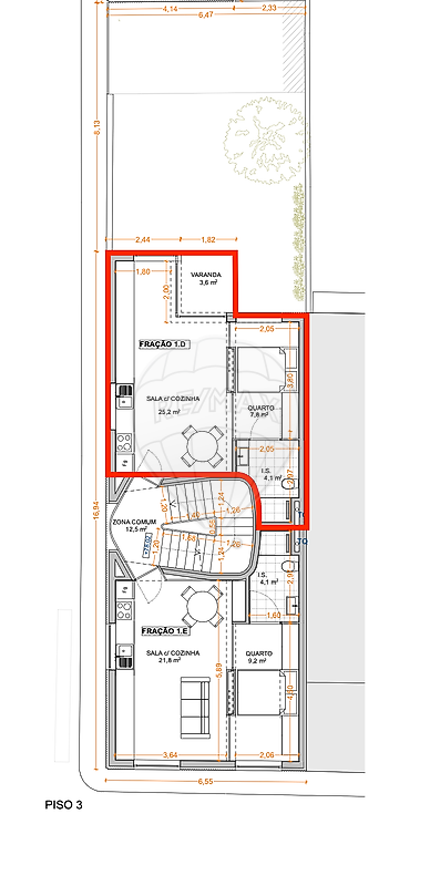
Pereiró Residences – Novo Empreendimento em Ramalde, Porto O Pereiró Residences é um novo empreendimento residencial localizado numa zona tranquila e consolidada de Ramalde, Porto. Composto por 2 blocos independentes, apresenta uma oferta moderna e versátil de apartamentos: Composição do Empreendimento • 2 Blocos: • Bloco A — 3 apartamentos • Bloco B — 5 apartamentos • Tipologias: 7 T0 e 1 T2 Soluções pensadas tanto para habitação própria como para investimento com ótima rentabilidade. Características Principais • Arquitetura contemporânea • Excelente luminosidade devido à implantação em esquina • Espaços funcionais e eficientes • Zona residencial calma e com ótima envolvente urbana • Forte procura para arrendamento Localização & Proximidades O empreendimento beneficia de uma localização estratégica, com múltiplos serviços e transportes a curta distância. • Metro Ramalde — aprox. 10–12 min a pé • Paragens de autocarro — 2–5 min a pé • Acesso rápido à VCI e principais vias da cidade • Pingo Doce de Ramalde — 6–10 min a pé • Comércio local (cafés, padarias, mercearias, farmácia) — a poucos minutos • Norte Shopping — 7 min de carro • Escolas básicas e secundárias de Ramalde — 5–12 min a pé • Colégio Espinheira Rio — 10–15 min a pé • Hospital da Prelada — 5 min de carro • Parque da Cidade — 10 min de carro Não perca esta oportunidade, fale connosco e conheça todos os detalhes em primeira mão!

Detalhes

Área Bruta m²
48
Área Total do Lote m²
- -
Área Útil m²
44
Ano de Construção
2027
Elevador
Não
Estacionamento
Não
Carregamento de Carros Elétricos
Não

Mapa

Divisões

Cozinha
Quarto
Sala de Estar

Contactar agente

RE/MAX Extra
RE/MAX Extra
Consultor Imobiliário
+351 962 552 222 · Rede móvel nacional

Simulador de Crédito

Valor do imóvel208 000
Valor de Entrada
20 80010%
Prazo de Amortização:30 anos
Prestação Mensal (*)840,61

(*) A prestação mensal indicada corresponde a um valor de referência, tendo por base uma taxa variável (Euribor a 6 meses), não dispensando uma análise financeira mais completa e detalhada!

A informação resultante destas simulações é meramente indicativa, tendo como finalidade orientar sobre o custo estimado, segundo os dados indicados pelo utilizador. Cada entidade financeira tem as suas próprias políticas e condições de financiamento, não ficando vinculadas aos resultados desta simulação.

RE/MAX Extra
RE/MAX Extra
Consultor Imobiliário