Apartment T1 for sale in Porto
Paranhos
275 900 €Sale
id. 126231018-56
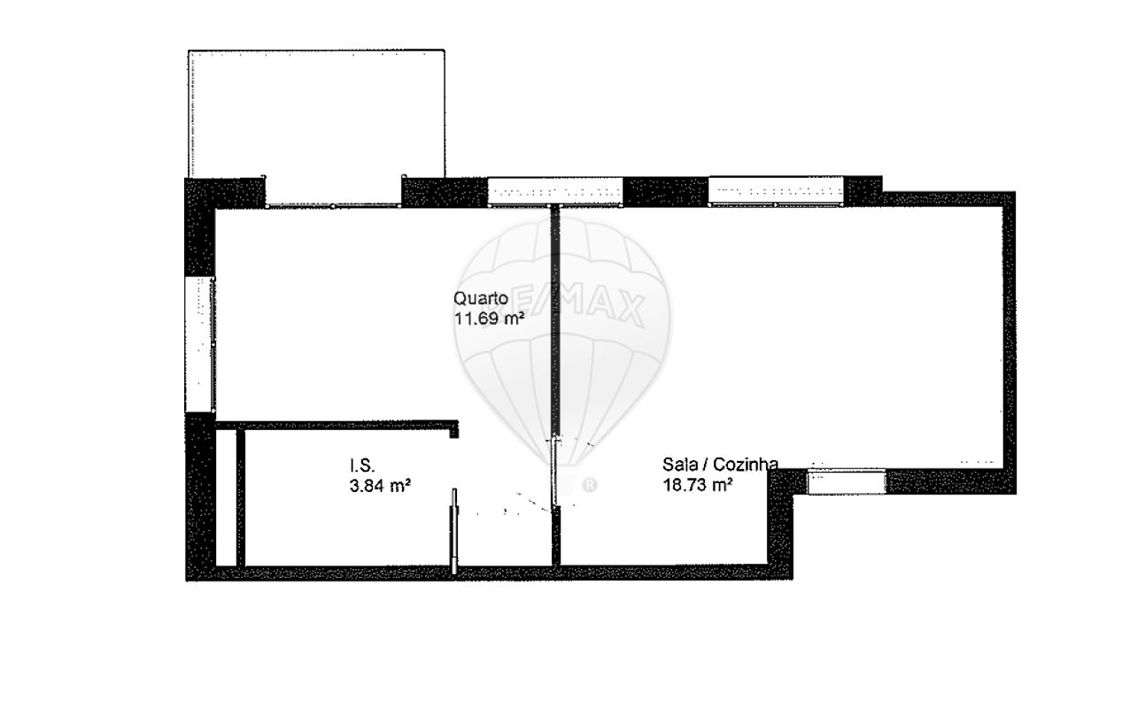
43 m²
1 Bedrooms
Description
Details
Gross Area m²
43Total Lot Area m²
62Living Area m²
48Bedrooms
1Year of Construction
2025Elevator
YesParking
YesElectric Car Charging
NoMap
Rooms
Kitchen
Bedroom
Living Room
Elevator
Parking





